WOLNE
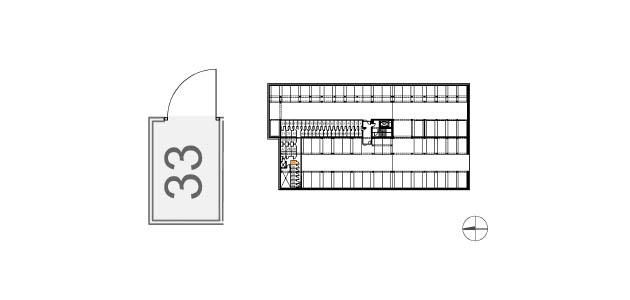
Mieszkanie nr 33
Pimpickiego 1, Olsztyn10-699 Olsztyn, woj. warmińsko-mazurskie
Metraż
42.39
Typ
2P + K
Kondygnacja
II PIĘTRO

Ogródek/balkon
7.45
Komórka lokatorska
1.81
Cena mieszkania
453 573,00 PLN
Cena mieszkania za 1 m²
10 700,00 PLN
Komórka lokatorska
w cenie mieszkania
11-04-2025
453 573,00 PLN
Zestawienie powierzchni (m2)
1
PRZEDPOKÓJ
6.88
2
ŁAZIENKA
3.84
3
POKÓJ
9.71
4
KUCHNIA
6.73
5
POKÓJ
15.23
B
BALKON
7.45
KL
KOM. LOK.
1.81
Prezentowane wyposażenie jest przykładowe i nie stanowi wyposażenia lokalu.

Pobierz prospekt informacyjny mieszkania
Prezentowane mieszkanie zostało wyróżnione na planie szarym kolorem.

Metraż
1.81
Koszt
w cenie mieszkania
Lokalizacja
podpiwniczenie

Zakup miejsca garażowego nie jest obligatoryjny.
Koszt
36 000,00 PLN
Metraż
22 m²
Lokalizacja
podpiwniczenie

Miejsca naziemne bezpłatne, ogólnodostępne tylko dla mieszkańców "Scacerowego Zacisza".

Krystyna Chomicka
697 702 227
Kontakt do nas
Powierzchnia użytkowa mieszkań liczona w świetle ścian wyprawionych zgodnie z Polską Normą PN - ISO 9836:2015.