WOLNE
Mieszkanie nr 6
Pimpickiego 1, Olsztyn10-699 Olsztyn, woj. warmińsko-mazurskie
Metraż
46.93
Typ
2P + K
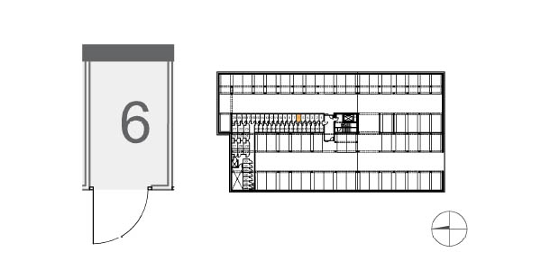
Kondygnacja
PARTER

Ogródek/balkon
32.14
Komórka lokatorska
2.09
Cena mieszkania
492 765,00 PLN
Cena mieszkania za 1 m²
10 500,00 PLN
Komórka lokatorska
w cenie mieszkania
11-04-2025
492 765,00 PLN
Zestawienie powierzchni (m2)
1
PRZEDPOKÓJ
8.56
2
ŁAZIENKA
3.92
3
POKÓJ
11.76
4
KUCHNIA
7.78
5
POKÓJ
14.87
O
OGRÓDEK ZIELONY
32.14
KL
KOM. LOK.
2.09
Prezentowane wyposażenie jest przykładowe i nie stanowi wyposażenia lokalu.

Pobierz prospekt informacyjny mieszkania
Prezentowane mieszkanie zostało wyróżnione na planie szarym kolorem.

Metraż
2.09
Koszt
w cenie mieszkania
Lokalizacja
podpiwniczenie

Zakup miejsca garażowego nie jest obligatoryjny.
Koszt
36 000,00 PLN
Metraż
22 m²
Lokalizacja
podpiwniczenie

Miejsca naziemne bezpłatne, ogólnodostępne tylko dla mieszkańców "Scacerowego Zacisza".

Krystyna Chomicka
697 702 227
Kontakt do nas
Powierzchnia użytkowa mieszkań liczona w świetle ścian wyprawionych zgodnie z Polską Normą PN - ISO 9836:2015.